| ■賃貸条件 | |||
|---|---|---|---|
| 賃料 | 46,000円 | 共益費 | 3,000円 |
| 駐車場 | 1台目 | 有り (3,300円) | |
| 敷金 | なし | 礼金 | 1.0ヶ月 |
| ■物件情報 | |||
| 所在地 | 愛媛県新居浜市泉宮町 | ||
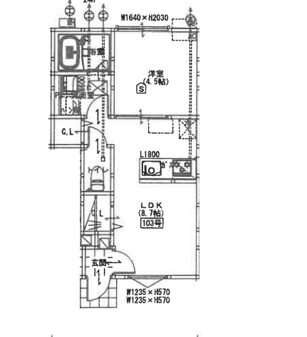
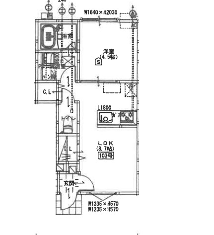
| 間取り | 1LDK | 専有面積 | 32.40㎡ |
| 間取り詳細 | LDK8.7 洋4.5 | 日当たり | 南 |
| 物件種別 | アパート・コーポ | 建物構造 | 木造 |
| 階数 | 1階/2階建 | 築年数 | 2022/07 (築3年5ヶ月) |
| 入居可能日 | 即入居 | 現況 | 空室 |
| 最寄駅 | JR予讃線 新居浜駅 徒歩29分 | ||
| 特記事項 | ライフサポート:(770 円/月) | ||
| ■設備 | |||
|---|---|---|---|
| プロパンガス | 光ファイバー | 駐輪場 | 温水洗浄便座(シャワートイレ) |
| オートバス(自動湯張り) | 洗髪洗面化粧台(シャンプードレッサー) | 追焚 | 浴室乾燥機 |
| システムキッチン | カウンターキッチン | ガスコンロ | コンロ2口以上 |
| クローゼット | シューズボックス | 室内洗濯機置場 | 照明器具 |
| エアコン | モニター付インターホン | シャッター雨戸 | バルコニー |
| 角部屋 | 暖房便座 | 1階 | 最下階 |
| ■備考 | |||
|---|---|---|---|
あんしん保証:契約時20000円、月額800円、更新時:2年毎賃料総額の25% |

ベルグレイヴィア新居浜中央A 101号























