| ■賃貸条件 | |||
|---|---|---|---|
| 賃料 | 46,000円 | 共益費 | 6,500円 |
| 駐車場 | 1台目 | 有り (4,400円) | |
| 敷金 | なし | 礼金 | 1.0ヶ月 |
| ■物件情報 | |||
| 所在地 | 愛媛県西条市飯岡1840-1 | ||
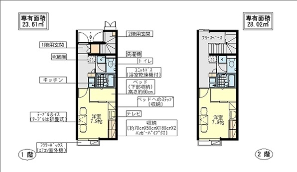
| 間取り | 1K | 専有面積 | 28.02㎡ |
| 間取り詳細 | 日当たり | 西 | |
| 物件種別 | アパート・コーポ | 建物構造 | 木造 |
| 階数 | 2階/2階建 | 築年数 | 2009/07 (築16年8ヶ月) |
| 入居可能日 | 2026年2月上旬(1日~10日) | 現況 | 空室 |
| 最寄駅 | JR予讃線 中萩駅 徒歩29分 | ||
| 特記事項 | |||
| ■設備 | |||
|---|---|---|---|
| プロパンガス | 専用ゴミ置き場 | 駐輪場 | 温水洗浄便座(シャワートイレ) |
| 浴室乾燥機 | 電気コンロ | コンロ2口以上 | クローゼット |
| 室内洗濯機置場 | 照明器具 | 冷蔵庫 | 電子レンジ |
| テレビ | 洗濯機 | ベッド | 机 |
| イス | カーテン | エアコン | モニター付インターホン |
| カードキー | 最上階 | 2階以上 | バス・トイレ別 |
| ■備考 | |||
|---|---|---|---|
個人契約は保証料:100%か120%(審査による) |

レオパレスプロヴァンス009 204号






