| ■賃貸条件 | |||
|---|---|---|---|
| 賃料 | 60,000円 | 共益費 | 4,000円 |
| 駐車場 | 1台目 | 有り (4,400円) 2台目4400円 | |
| 2台目4400円 | |||
| 敷金 | なし | 礼金 | なし |
| ■物件情報 | |||
| 所在地 | 愛媛県新居浜市田所町6 | ||
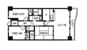
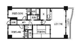
| 間取り | 3LDK | 専有面積 | 68.13㎡ |
| 間取り詳細 | LDK11 洋5.4 洋5.32 和6 | 日当たり | 南 |
| 物件種別 | マンション | 建物構造 | RC造 |
| 階数 | 2階/5階建 | 築年数 | 1997/02 (築29年3ヶ月) |
| 入居可能日 | 即入居 | 現況 | 空室 |
| 最寄駅 | JR予讃線 新居浜駅 徒歩26分 | ||
| 特記事項 | 退去時清掃代:(66,000 円/初期時) | ||
| ■設備 | |||
|---|---|---|---|
| エレベーター | プロパンガス | 専用ゴミ置き場 | CATV |
| 駐輪場 | 温水洗浄便座(シャワートイレ) | 洗髪洗面化粧台(シャンプードレッサー) | システムキッチン |
| カウンターキッチン | シングルレバー | ガスコンロ | コンロ2口以上 |
| クローゼット | 室内洗濯機置場 | モニター付インターホン | バルコニー |
| 暖房便座 | 子供可 | 保証人不要 | 南向き |
| 2階以上 | バス・トイレ別 | ||
| ■備考 | |||
|---|---|---|---|
保証料:契約時月額賃料の50%(最低保証料20,000円)と毎月750円 法人契約は敷金礼金各1ヶ月 |

アイビー館 223号



















