| ■賃貸条件 | |||
|---|---|---|---|
| 賃料 | 59,000円 | 共益費 | 4,000円 |
| 駐車場 | 1台目 | 有り (4,400円) 2台目4400円 | |
| 2台目4400円 | |||
| 敷金 | なし | 礼金 | なし |
| ■物件情報 | |||
| 所在地 | 愛媛県新居浜市田所町6 | ||
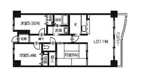
| 間取り | 3LDK | 専有面積 | 68.13㎡ |
| 間取り詳細 | LDK11 洋5.3 洋5.4 和6 | 日当たり | 南 |
| 物件種別 | マンション | 建物構造 | RC造 |
| 階数 | 1階/5階建 | 築年数 | 1997/02 (築28年10ヶ月) |
| 入居可能日 | 即入居 | 現況 | 空室 |
| 最寄駅 | JR予讃線 新居浜駅 徒歩26分 | ||
| 特記事項 | |||
| ■設備 | |||
|---|---|---|---|
| エレベーター | プロパンガス | 専用ゴミ置き場 | CATV |
| 駐輪場 | 温水洗浄便座(シャワートイレ) | 洗髪洗面化粧台(シャンプードレッサー) | システムキッチン |
| カウンターキッチン | ガスコンロ | コンロ2口以上 | クローゼット |
| シューズボックス | 室内洗濯機置場 | エアコン | バルコニー |
| 角部屋 | 1階 | 最下階 | 子供可 |
| 保証人不要 | 南向き | バス・トイレ別 | 押入れ |
| ■備考 | |||
|---|---|---|---|
保証料:契約時月額賃料の50%(最低保証料20,000円)と毎月750円 |

アイビー館 211号



























