新居浜市での不動産、賃貸、お部屋探しならレオパレスパートナーズの【株式会社 三ツ星綜合不動産】まで

本日の公開部屋数! 1670件

新居浜市の不動産情報は株式会社三ツ星綜合不動産

お問合せ0897-32-6030

  • ホーム
  • 会社概要
  • 三ツ星不動産の特徴
  • 店舗紹介
  • ご契約の流れ
  • よくある質問
  • 来店予約
  • お問合せ

三ツ星綜合不動産 > 新居浜賃貸索 > 賃貸物件一覧 > 賃貸物件詳細

アパート・コーポ

レオパレスパルTKPartⅡ 101

お気に入りに追加
この物件を印刷する

オススメポイント

家具、家電付き。

  • 外観

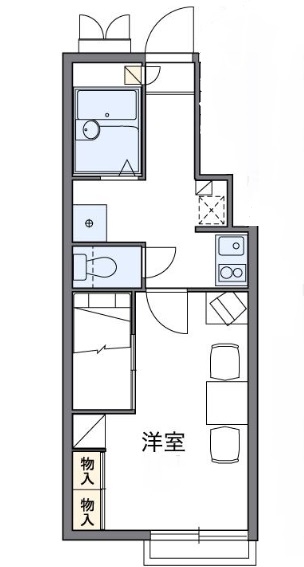
  • 間取り

物件基本情報

賃料/共益費 32,000円/4,500円 敷金(保証金) なし 礼金 1.0ヶ月
所在地/最寄駅 愛媛県新居浜市土橋1丁目4-28/JR予讃線 新居浜駅 徒歩28分 仲介手数料 なし
構造 木造 校区(小学校) 校区(中学校)
築年数 2005/11 (築20年1ヶ月) 間取り 1 K   階数 1階/2階建
現況 空室 専有面積 23.71㎡ 総戸数 12戸
入居可能時期 即入居 日当たり 火災保険等 別途必要料金: 17,000円
水道料 実費 町費 550 円 インターネット料金 2,640 円
退去時清掃代 41,800 円 鍵交換費 16,500 円 ペット保証金 -
駐車場 有り (4,950円)  
特記事項
備考 個人契約は保証料:100%か120%(審査による) 

この物件の設備

プロパンガス 専用ゴミ置き場 光ファイバー 24時間電話受付 駐輪場 温水洗浄便座(シャワートイレ) 浴室乾燥機 電気コンロ コンロ2口以上 クローゼット シューズボックス
室内洗濯機置場 照明器具 冷蔵庫 電子レンジ テレビ 洗濯機 ベッド 机 イス カーテン エアコン
モニター付インターホン カードキー 1階 最下階 南向き 全室フローリング バス・トイレ別 

キャンペーン情報

この物件の写真

  • リビング

  • リビング

  • 収納

  • 収納

  • キッチン

  • その他

  • 風呂

  • 設備

  • 設備

  • セキュリティ

  • その他

  • トイレ

  • 室内(洋室)

  • 玄関

  • 駐車場

リクエスト投稿

地図・周辺情報

周辺情報

スーパー パルティ・フジ本郷 684m スーパー バリュー新居浜店 1,472m
コンビニ ローソン新居浜本郷店 599m ドラッグストア レデイ薬局新居浜西店 1,118m
その他 (株)明屋書店 新居浜本店 776m   0m

簡単お問合せ

下記の項目にご記入いただき、「送信する」をクリックしてください。
※すべての項目をご記入ください。

お問合せ区分
         
メールアドレス

入力 

確認 


※携帯電話のドメイン指定受信をご利用されている方は、メールを受信できるよう設定が必要です。

お名前

ふりがな

内容

 

img

ご不明な点等、お気軽にご相談下さい。

お電話でのお問合せ

TEL:0897-32-6030 愛媛県新居浜市久保田町2-2-9 営業時間 10:00~18:00

レオパレス21パートナーズ

img


募集中の他の部屋

 

page up