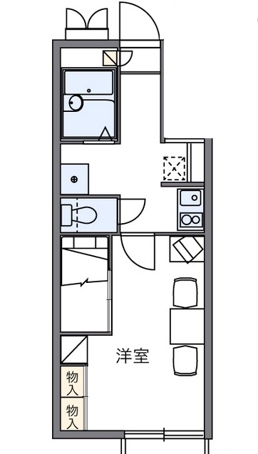
間取り

 50,000円

101号  【1K】

入居:2025/12上旬

詳細はこちら