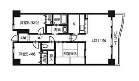
間取り

 60,000円

223号  【3LDK】

入居:即入居

詳細はこちら

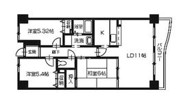
間取り

 62,000円

224号  【3LDK】

入居:即入居

詳細はこちら