間取り

 80,300円

220号  【1R】

入居:即入居

詳細はこちら

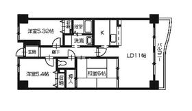
間取り

 60,000円

223号  【3LDK】

入居:即入居

詳細はこちら