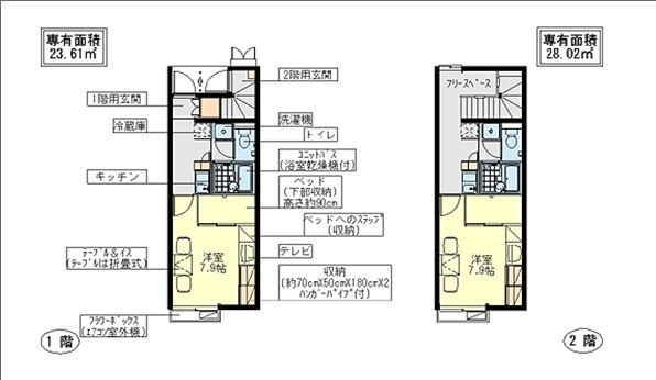
間取り

 44,000円

112号  【1K】

入居:2026/06中旬

詳細はこちら

間取り

 46,000円

208号  【1K】

入居:2026/03上旬

詳細はこちら

間取り

 46,000円

209号  【1K】

入居:2026/03上旬

詳細はこちら

間取り

 46,000円

210号  【1K】

入居:2026/03上旬

詳細はこちら

間取り

 46,000円

211号  【1K】

入居:2026/03中旬

詳細はこちら

間取り

 47,000円

214号  【1K】

入居:2026/03上旬

詳細はこちら